搜索
菜单
首页
案例集
毛坯房
精装房
旧房改
局部图
联系我
搜索一下
当前位置:
首页
»
项目案例
»
旧房改
» 正文
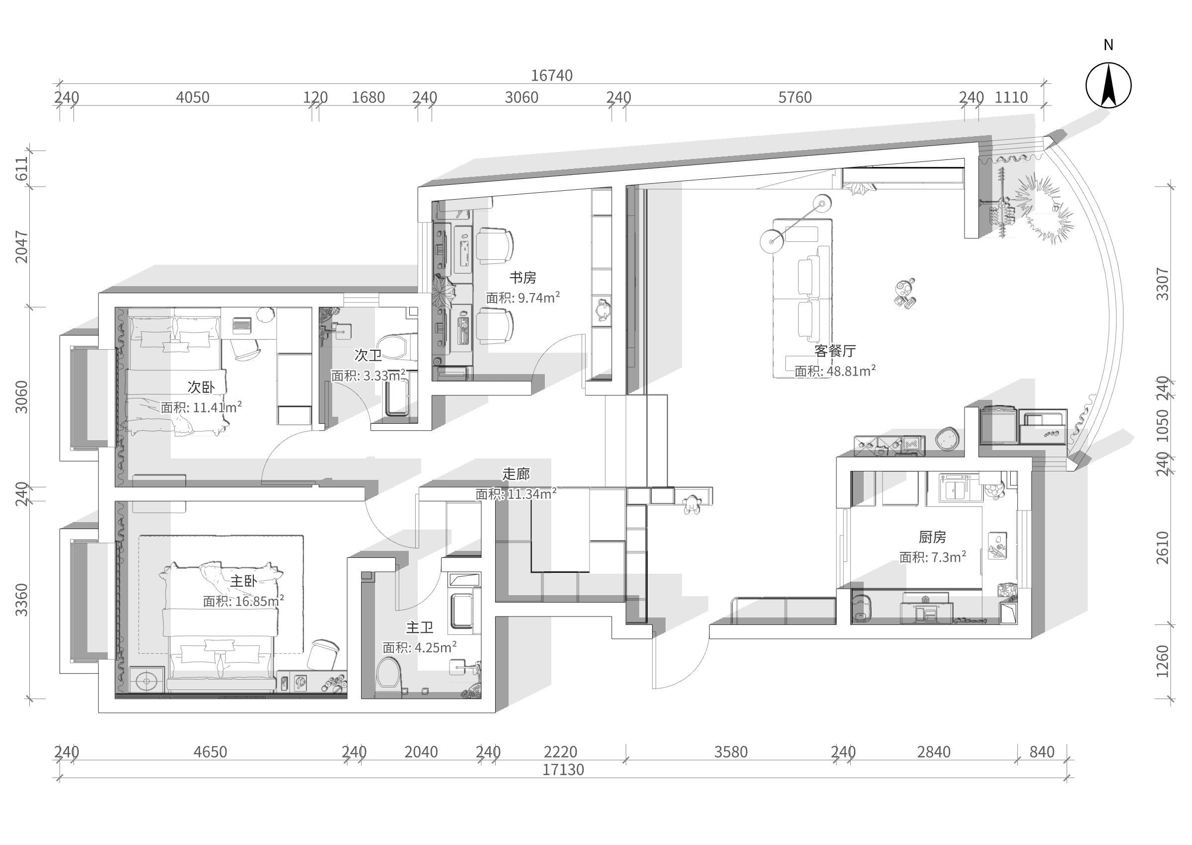
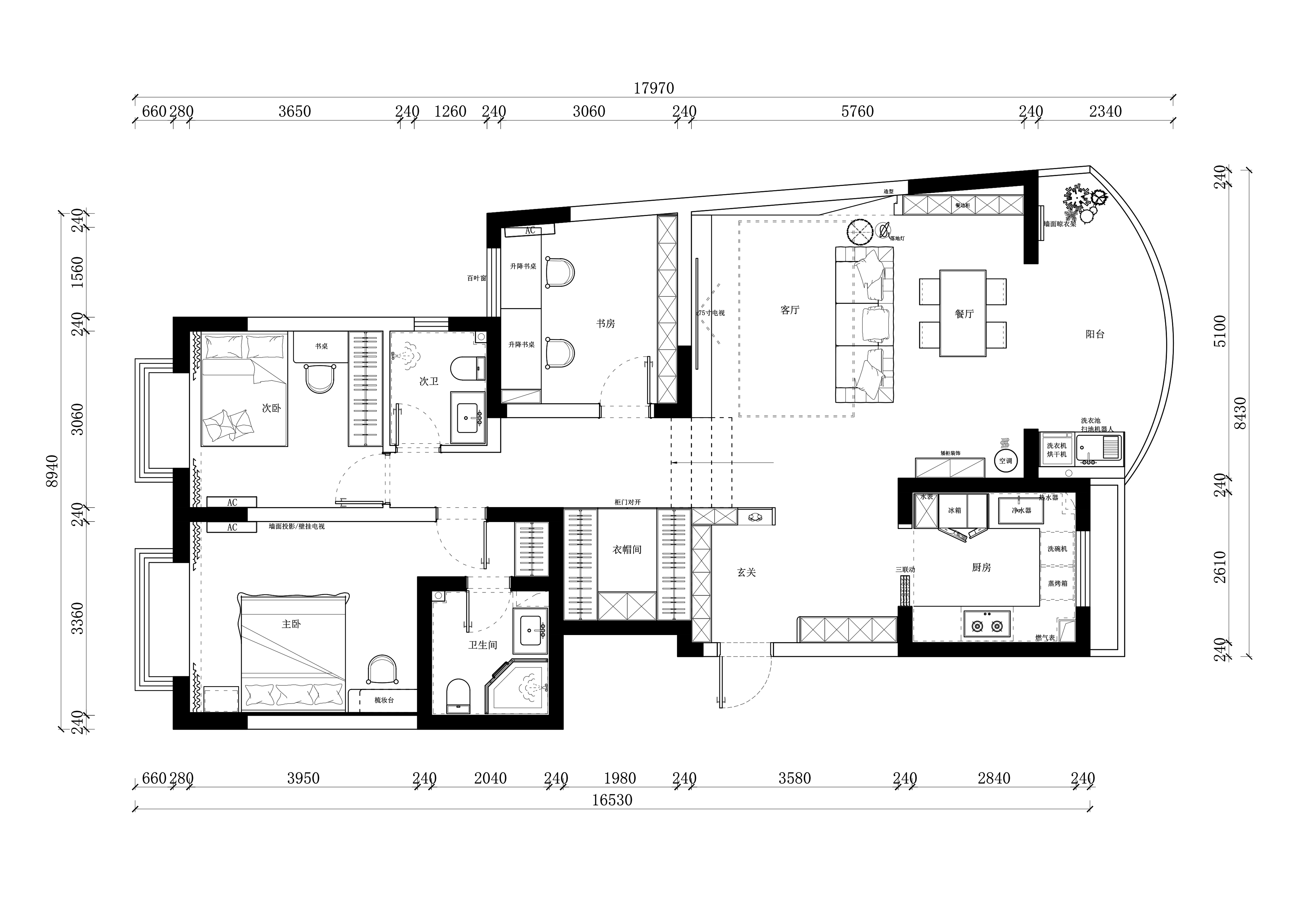
尘间设计丨四川120㎡3居意式极简风的家
李同学
2025-11-04
903
预计阅读需要1分钟
点击二维码/扫码查看全景
评论已经被关闭。
插入图片
本地上传
首页
案例集
毛坯房
精装房
旧房改
局部图
联系我
搜索一下
✕
首页
案例集
毛坯房
精装房
旧房改
局部图
联系我
投稿
QQ
微信
微博
关注
返回顶部
微信扫一扫